Freight Elevator

Special Features

General Type

- Accurate landing, smooth acceleration and deceleration. comfortable riding, low-noise operation
- 40% energy saving(compared to conventional AC control system)
- 40% reduction in building power requirements (compared to conventional AC control system)
- High reliability with enhanced operation in all respects (All functiors are controlled by computer and frequency of machine breakdown rates minimized.)
- Self-checking system built-in inside computer

Hydraulic Type

- Require smaller installation space compared to traction (rope) elevators.
- Greater advantages for construction design (Because machine rooms can be made anywhere in the building except in the shaft.)
- Accurate landing and comfortable riding
- High reliability (If power fails, the car moves down to the bottom floor autornatically)
- Enhanced safety (Safety device cuts off the flow of oil when the descending speed of car exceeds the pre-determined speed.)

Highly durable and strong

Freight elevator

Our durable freight elevator is built with high strength materials with reinforced car bottom design.

Freight elevator

Our freight elevator car is equipped with anti-collision panels to prevent damages to the car wall during accidental collision. These panels also act as warning alert to the workers and help to keep the elevator car cabin in good condition.

Freight elevator

Special loading requirements to enable the use of fork lift to load and unload cargo inside the freight elevator can be made according Class C Loading requirements.

Special Loading Requirements

Class C Loading

NOTE: Class C loading is not permitted for accessibility lifts or for LULA elevators.

Class C1 Loading

This class allows industrial truck loading or unloading of the elevator system. The combined weight of the industrial truck and the load cannot exceed the stated capacity of the elevator. The loading device can remain on the elevator during operation.

Freight elevator

Class C2 Loading

This class allows for the loading of the platform at 150% of the stated capacity of the elevator. In most cases, this allows for a one- piece load that equals the capacity of the elevator to be loaded with a forklift or motorized lift truck on to the platform of the elevator. The loading device must be removed prior to the operation of the elevator.

Freight elevator

Class C3 Loading

This class allows for heavy concentration loading where the static load during loading and unloading does not exceed the rated load. The combined weight of the load and equipment must not exceed the stated capacity of the elevator system. In practice, Class C3 elevators are most often designated to support single piece loads equal to the capacity of the elevator.

Freight elevator

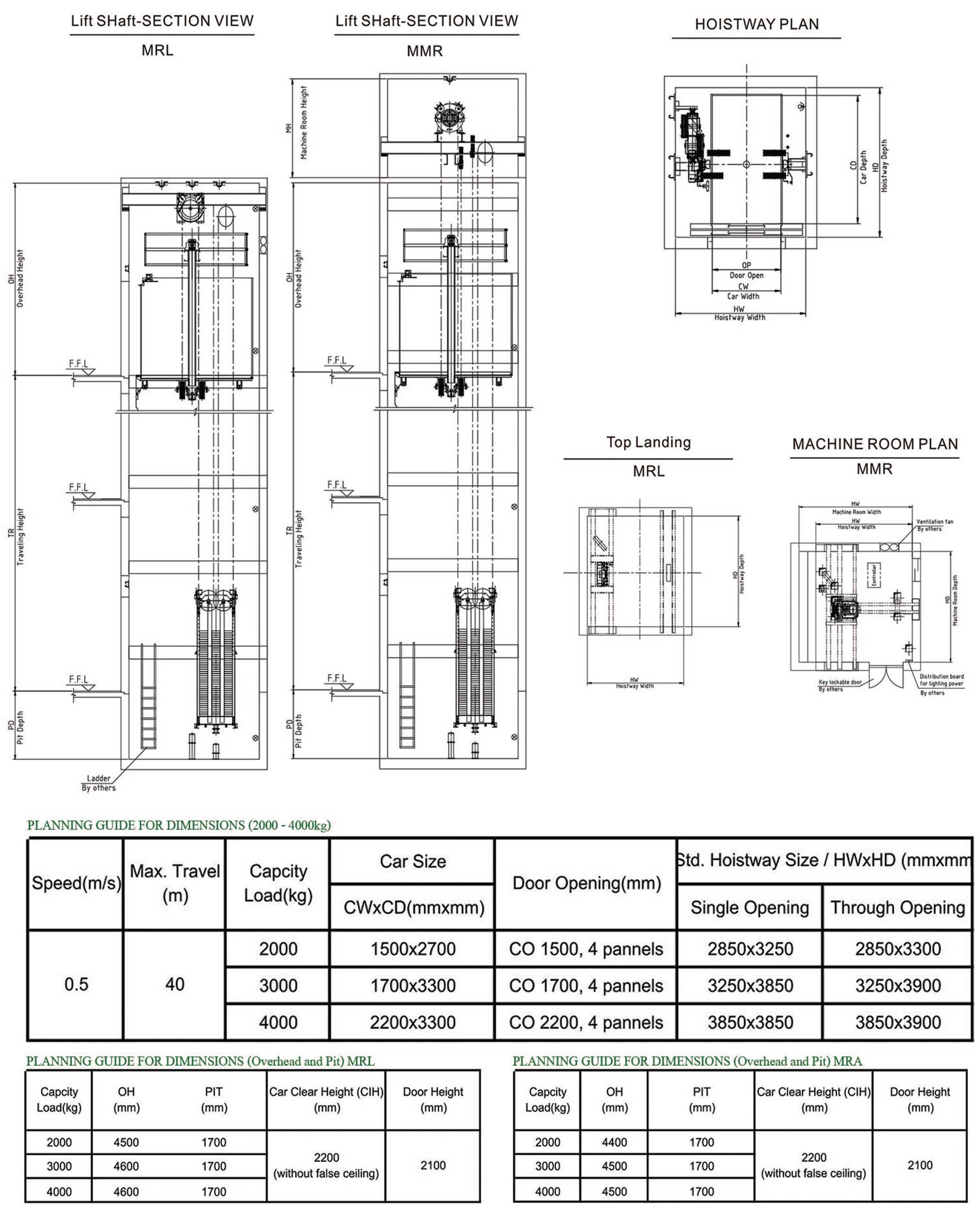
F200 (MRL & MMR) FREIGHT LIFT

Freight elevator

F100(MRA) 2000 - 5000KGS Freight Lift

Freight elevator

Reference Projects

Freight elevator

Freight elevator

Standard Cabin Design

Freight elevator

CAR CEILING
ASC-A-01 Painted Steel with LED downlight

CAR WALL
Painted Steel

CAR DOOR
Painted Steel

LANDING DOOR
Painted Steel

COP & HOP
304 Hairline Stainless Steel with Dot-Matrix LED Screen and ASB-M-01 push button

CAR FLOOR
Checkered Plate

For more designs, please check in catalog.