Car Elevator

Special Features

Car elevator

Car elevator

Single Automatic Operation

Car elevator

Car elevator

Automobile Elevators

Car elevator

Cabin Specifications

Car elevator

Signal Provisions

Car elevator

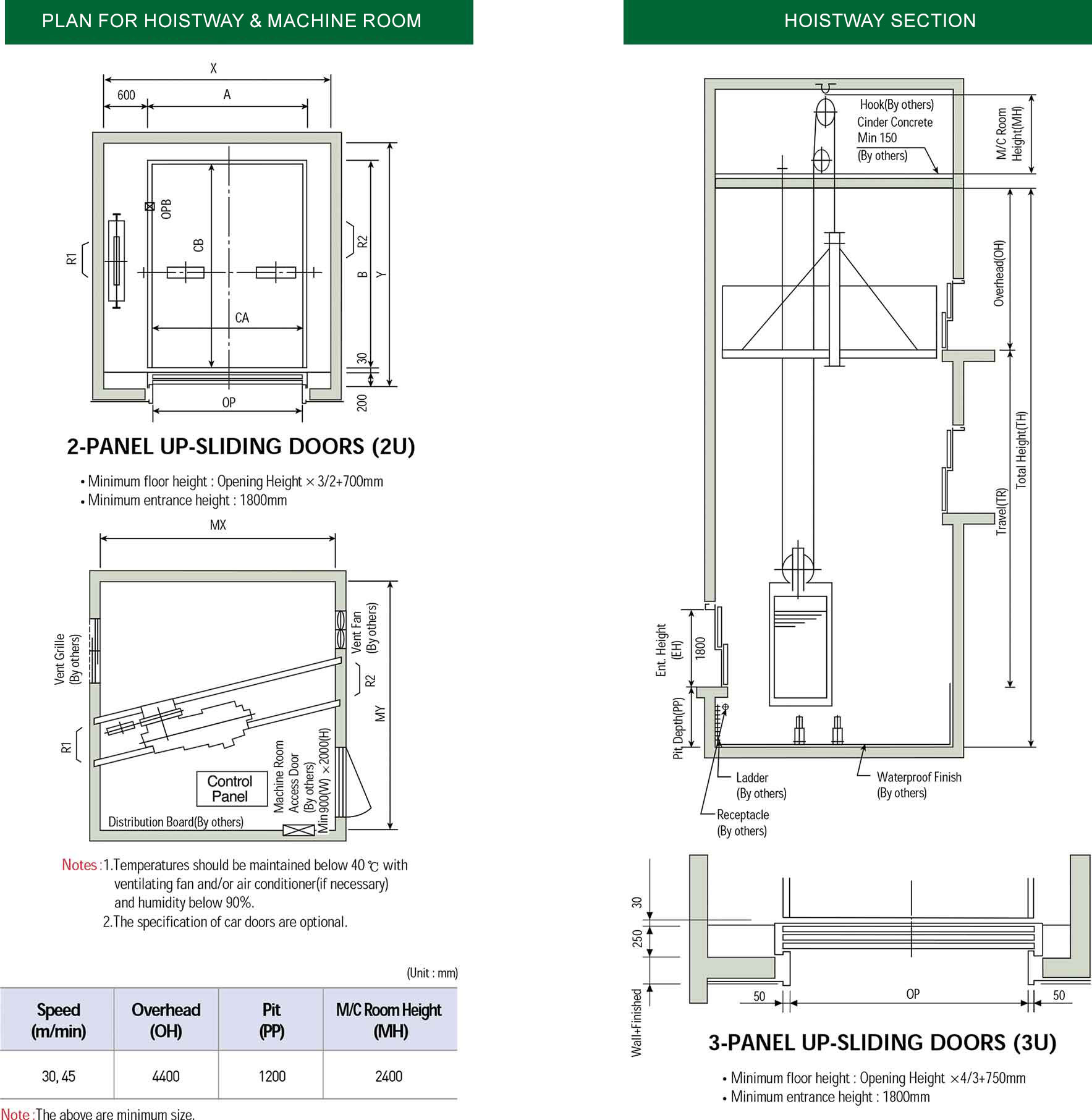
Plan Guidelines

Car elevator

Car elevator

Car elevator

Reference Projects

Car elevator