Freight Elevator
Special Features
General Type
- Accurate landing, smooth acceleration and deceleration.
comfortable riding, low-noise operation
- 40% energy saving(compared to conventional AC control system)
- 40% reduction in building power requirements (compared to
conventional AC control system)
- High reliability with enhanced operation in all respects (All functiors are
controlled by computer and frequency of machine breakdown rates
minimized.)
- Self-checking system built-in inside computer
Hydraulic Type
- Require smaller installation space compared to traction (rope) elevators.
- Greater advantages for construction design (Because machine
rooms can be made anywhere in the building except in the shaft.)
- Accurate landing and comfortable riding
- High reliability (If power fails, the car moves down to the bottom
floor autornatically)
- Enhanced safety (Safety device cuts off the flow of oil when the
descending speed of car exceeds the pre-determined speed.)
Highly durable and strong

Our durable freight elevator is built with high strength materials with reinforced car bottom design.

Our freight elevator car is equipped with anti-collision panels to prevent damages to the car wall during accidental collision. These panels also act as warning alert to the workers and help to keep the elevator car cabin in good condition.

Special loading requirements to enable the use of fork lift to load and unload cargo inside the freight elevator can be made according Class C Loading requirements.
Special Loading Requirements
Class C Loading
NOTE: Class C loading is not permitted for accessibility lifts or for LULA elevators.
Class C1 Loading
This class allows industrial truck loading or unloading of the elevator system. The combined weight of the industrial truck and the load cannot exceed the stated capacity of the elevator. The loading device can remain on the elevator during operation.

Class C2 Loading
This class allows for the loading of the platform at 150% of the stated capacity of the elevator. In most cases, this allows for a one- piece load that equals the capacity of the elevator to be loaded with a forklift or motorized lift truck on to the platform of the elevator. The loading device must be removed prior to the operation of the elevator.

Class C3 Loading
This class allows for heavy concentration loading where the static load during loading and unloading does not exceed the rated load. The combined weight of the load and equipment must not exceed the stated capacity of the elevator system. In practice, Class C3 elevators are most often designated to support single piece loads equal to the capacity of the elevator.

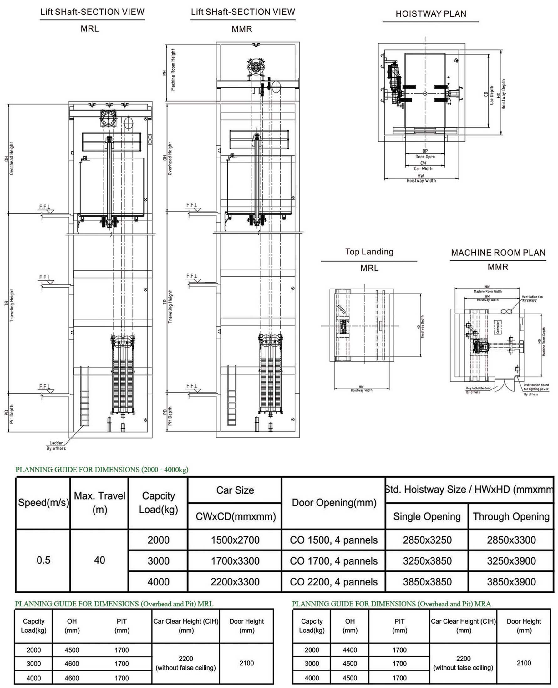
F200 (MRL & MMR) FREIGHT LIFT

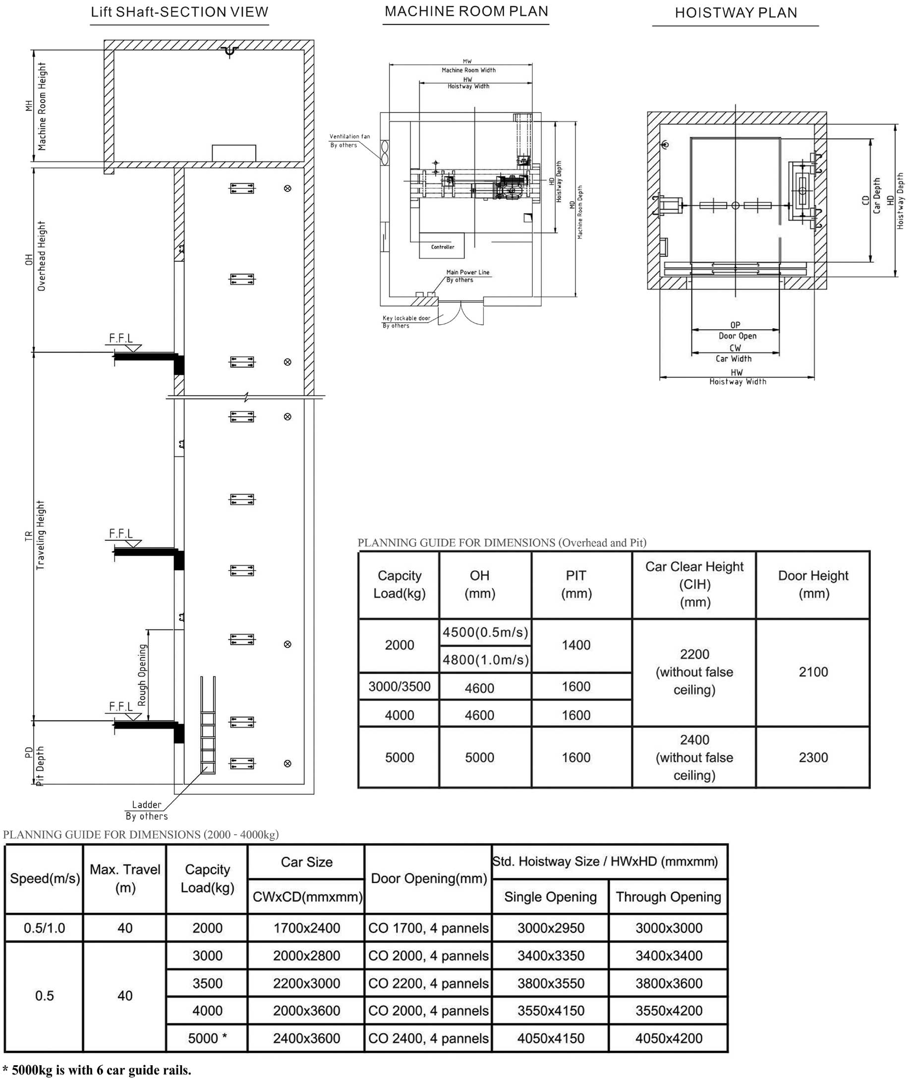
F100(MRA) 2000 - 5000KGS Freight Lift

Reference Projects


Standard Cabin Design

CAR CEILING
ASC-A-01 Painted Steel
with LED downlight
CAR WALL
Painted Steel
CAR DOOR
Painted Steel
LANDING DOOR
Painted Steel
COP & HOP
304 Hairline Stainless Steel with Dot-Matrix LED Screen
and ASB-M-01 push button
CAR FLOOR
Checkered Plate
For more designs, please check in catalog.

