Car Elevator
Special Features


Single Automatic Operation


Automobile Elevators

Cabin Specifications

Signal Provisions

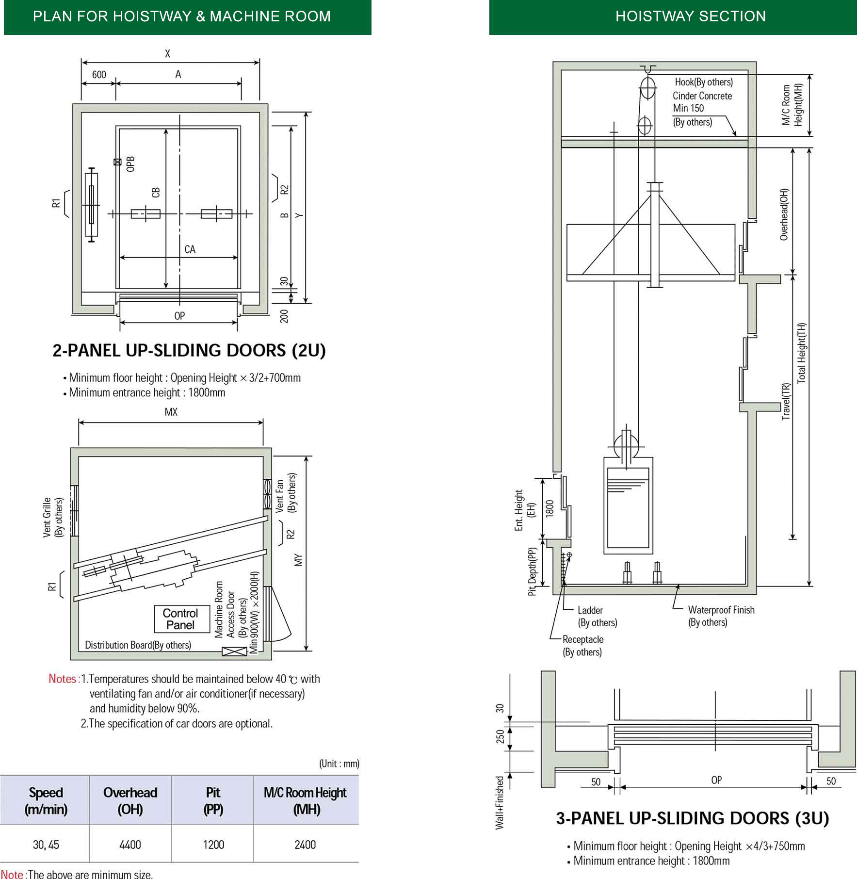
Plan Guidelines



Reference Projects

Special Features


Single Automatic Operation



Cabin Specifications


Plan Guidelines



Reference Projects
