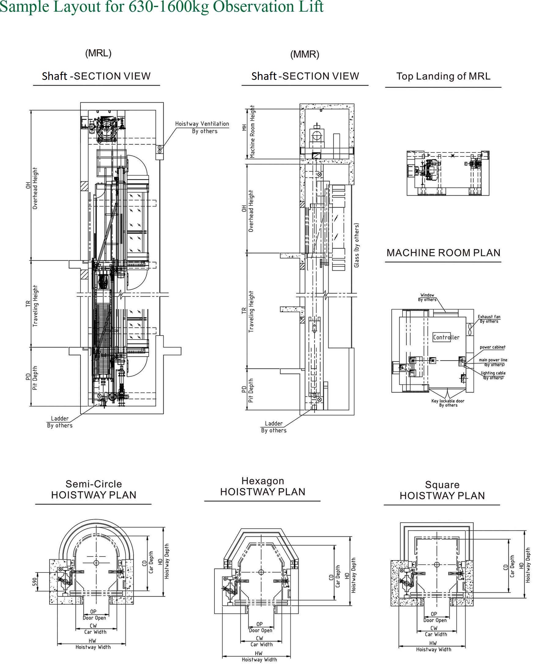
Observation Passenger Elevator
The observation passenger elevator provides a unique and comfortable sightseeing ride. It is designed with beautiful aesthetic value that amplifies the charm of modern luxurious architecture. The VVVF inverter used is energy saving and quiet for calm and pleasant rides suitable for all types of urban buildings from condominium to hotel.








